傳統的活性污泥法是大多數城市污水處理廠所普遍使用的技術,在常溫下處理效果較好。然而,我國北方地區和高寒地區,污水處理效果受到進水及環境溫度的影響較大,隨著水溫的降低,活性污泥的活性逐漸下降,系統負荷收到嚴重的沖擊。當溫度低于15℃時,微生物的活性將急劇下降,硝化效果降低,出水氨氮開始升高;當溫度低于8℃,部分微生物處于休眠狀態,出水氨氮超標;當溫度低于4℃,絕大部分微生物進入休眠期甚至死亡,系統硝化作用幾乎停止。同時低溫環境造成絲狀菌大量滋生,污泥膨脹,嚴重影響出水水質。
近幾年,我國環保事態嚴峻,污水廠出水標準提高,特別是對于北方及高寒地區的污水廠,提標改造勢在必行,本篇以河北某細絨廢水污水廠和青海某生活污水廠為例,介紹提標改造技術。
| 河北洗絨廢水處理廠 | 青海某生活污水處理廠 |
|
|
|
河北某村幾家洗絨廠,生產廢水為高氨氮、高CODcr、高磷的洗絨廢水,為了響應國家政策,同時建立了幾家洗絨廢水處理廠,最大的規模為3000t/d,最小的規模為800t/d。工藝主要為兩級AO,前處理單元為氣浮池,后續處理單元為石英砂過濾器+臭氧消毒,出水水質為一級A標準。 該污水處理廠處于海拔3300m左右的地區,常年低溫,晝夜溫差大,進水溫度低,最低進水溫度小于8℃。處理廢水為城鎮生活污水,設計處理量為2000t/d,當時主要的處理工藝為CASS工藝,排放標準為一級B標準。 |
在缺氧池及好氧池中布置蘇凈高效脫氮填料,每個工藝段布置的密度、型號皆不相同。缺氧池安裝潛水推流器,放置污泥沉積、并通過內回流強化缺氧反硝化的功能,好氧段使用膜片式曝氣系統,嚴格控制溶解氧,調整好好氧池的溶解氧曲線梯度,通過投加純堿、調節PH值,使硝化菌處于最適宜的生長環境,保證出水氨氮達標。室外加強保溫,安裝保溫鋼板房,室內安裝暖氣,進一步加強保溫效果。 由于當地的氣候原因,導致進水溫度過低,特別是冬季,出水指標難以保證,而且該污水廠處理規模較小,來水變化系數較大,對于污水處理設施,尤其是對生化處理系統造成負荷沖擊,極易出現污泥膨脹的現象。因此需要對其工藝進行改造。 |

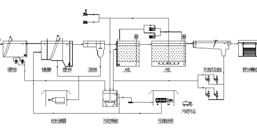
圖一 工藝流程
1)將CASS改造為A/O+沉淀池的工藝,并在A/O池部分安裝高效脫氮填料,強化生物脫氮功能,增強系統的抗負荷沖擊能力。
2)生化池地上部分以及走廊外圍采用酚醛泡沫保溫處理,重新建造彩鋼房,加強保溫鋼板厚度。車間內加暖氣片,進一步加強保溫效果。
3)A池安裝攪拌器,放置污泥沉淀,同時可以通過內回流強化反硝
化效果。
4)更換曝氣系統,控制溶解氧梯度,加強硝化處理效果。
5)出水消毒由液氯消毒改為紫外線消毒,既安全又經濟。
6)為了滿足供暖需求,對鍋爐進行改造。
通過改造,該項目出水可以保證達到一級A標準,系統穩定運行,即使在冬季也可穩定達標。